Alcadrain A449-DN50/40 - Sifon pro dvoudřez s nerezovými mřížkami DN70 + SLEVA 3% při použití kódu MS3 v košíku
Kód: A449-DN50/40Detailní popis produktu
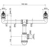
Použití:Pro dvoudílné dřezy
Vlastnosti:
Materiál: polypropylen
Vývod odpadu připraven pro napojení odpadní trubky Ø50 nebo Ø40 mm
Technické parametry:
Průtok dvěma výpustmi - - 83,4 - l/min
Průtok jednou výpustí - - 49,8 - l/min
Tepelný atest - - 95 - ˚C
Zápachová uzávěra - - 50 - mm
Rozsah dodávky:
Nerezová mřížka výpusti 2 ks
Tělo sifonu s dvěma výpustmi
Zátka z PVC 2 ks
Doplňkové parametry
| Kategorie: | Sifony dřezové |
|---|---|
| EAN: | 8594045933727 |
Diskuze
Buďte první, kdo napíše příspěvek k této položce.
.png)